Leningrado casa de plástico
Categorias: Diseño y Arquitectura
Por Pictolic https://pictolic.com/es/article/leningrado-casa-de-plstico.htmlEn 1961, se llevó a cabo un experimento de construcción único en Leningrado: se construyó una pequeña mansión en la calle Torzhkovskaya en las profundidades del bloque entre la casa 24, edificio 1 y 24, edificio 2. Su singularidad no estaba en su aspecto arquitectónico brillante, no en el hecho de que una mansión de un solo apartamento apareció de repente entre los típicos edificios de cinco pisos de Jrushchov, sino en el hecho de que estaba hecha de ... plastico.

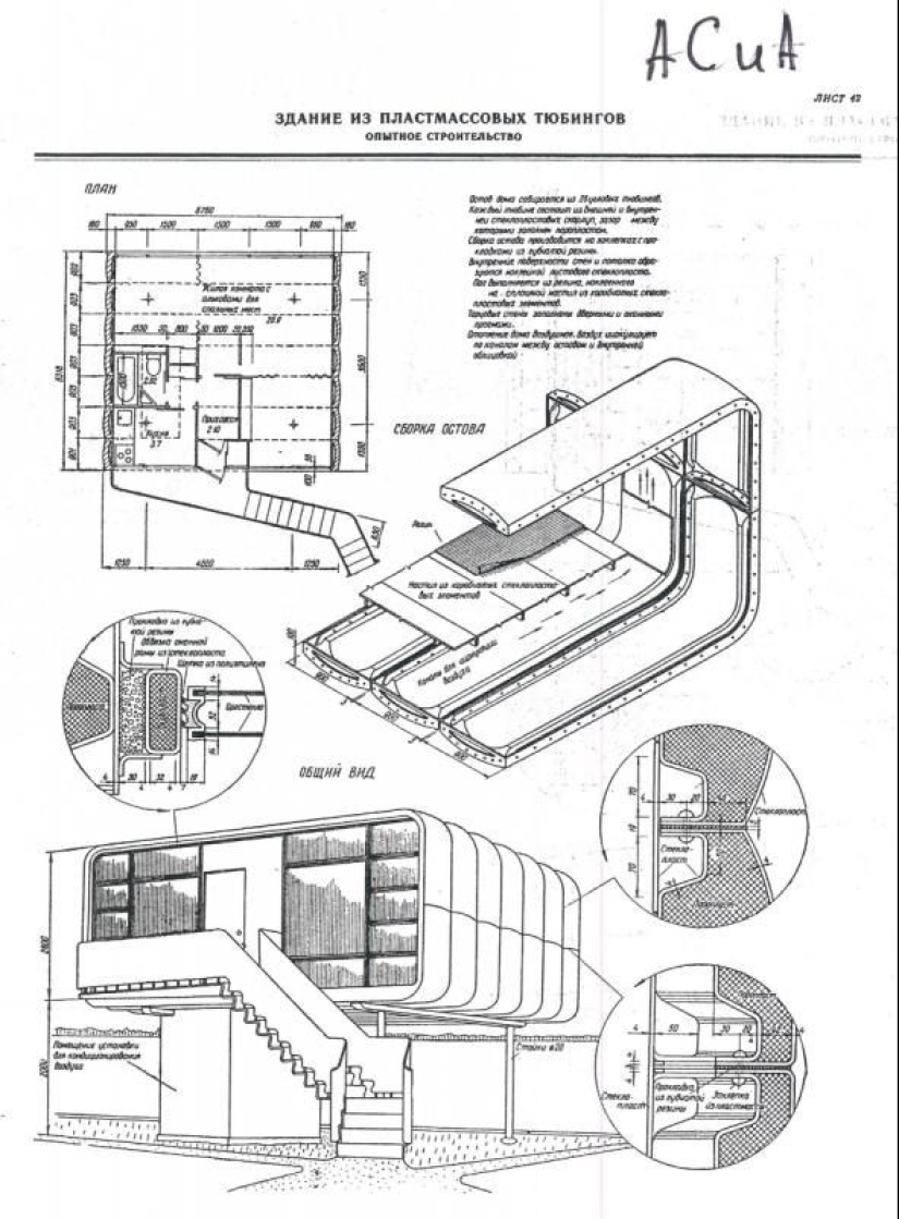
De hecho, la casa era de dos pisos. La planta baja era técnica, donde había varias comunicaciones y la instalación de calefacción y ventilación de aire. Las paredes del piso técnico se hicieron en forma de un marco de hormigón armado lleno de bloques de vidrio. La superior (residencial) fue hecha de plástico el piso se eleva 2 metros 20 centímetros sobre el nivel del suelo.
Desafortunadamente, la casa de plástico no ha sobrevivido hasta el día de hoy. Así es como se ve ahora el lugar donde una vez estuvo.

El edificio en la foto de la izquierda tiene la dirección: Torzhkovskaya str., 24, edificio 2-ahora hay un club juvenil "Yunost"trabajando en él. En la distancia, se puede ver un típico edificio de cuatro pisos, que ahora alberga el Palacio de la Creatividad de los Niños y Jóvenes.

Los autores de la casa plástica experimental fueron el arquitecto A. P. Shcherbenok y el ingeniero L. G. Levinsky.

Las paredes de la casa se montaron a partir de paneles que estaban hechos de dos capas de fibra de vidrio duradera con una capa de poliestireno expandido encerrada entre ellas (que desempeñó el papel de aislamiento). El espesor máximo de las paredes alcanzó los 14 centímetros, la rigidez se les dio por una especie de estructuras de concha. Los ingenieros experimentales calcularon entonces que las propiedades de protección térmica de tales "sándwiches" de plástico serían iguales a una pared de ladrillo de dos metros.

Un apartamento de una habitación con una cocina, un baño combinado, un trastero y una pequeña terraza fue diseñado en una casa de plástico. A los autores del experimento se les ocurrió el máximo número de elementos hechos de plástico: enormes ventanas estaban hechas de plexiglás, tuberías hechas de plástico de vinilo, papel pintado hecho de película de PVC sobre una base de papel.

Nadie vivía en esta pequeña casa. El objetivo principal del experimento fue probar las posibilidades de fabricar diversos productos de construcción a partir de plásticos, así como estudiar los indicadores de rendimiento de los edificios de plástico.

Sobre la base de los resultados del análisis y la generalización de las observaciones de tres años en la primera casa doméstica completamente de plástico, desde mediados de los años 60, hemos pasado a la introducción práctica de los plásticos en la construcción. En Moscú, se construyó un edificio de plástico de cinco pisos en el 4º carril Vyatsky.

El experimento fue ampliamente cubierto por la prensa. Además de las publicaciones nacionales, desde especializadas hasta la ciencia popular, las fotos de la casa de plástico de Leningrado aparecieron en revistas extranjeras.



Cabe señalar que la casa de plástico soviética no era la única en el mundo. En 1957, se construyó una "Casa del Futuro" de plástico en Disneyland.


En 1963, Dieter Schmidt construyó su casa de plástico, estructuralmente similar a su homólogo de Leningrado.

En 1969, otra mansión de plástico fue construida en Alemania, superando el tamaño de sus predecesores.
La primera casa de plástico doméstica fue un laboratorio durante tres años. Y luego se olvidaron de ello. La casa se estaba deteriorando lentamente, destruida por el tiempo y las manos de los vándalos. Al final, los restos de la misma fueron demolidos.
Palabras clave: Russian Federation | Construction | House | Design and architecture | Plastic | USSR | Experiment | Leningrad
Publicar artículo de noticiasArtículos Recientes
Leonardo da Vinci fue acusado de ser aficionado a las orgías. Guillermo el Conquistador, a pesar de todos sus éxitos, fue llamado ...
¿Modestia? ¿Decencia? ¿Sentido del tacto? ¡No, no lo has oído! ¡Solo mira lo que están haciendo las personas de la siguiente ...
Artículos relacionados
Igor Lomov, un diseñador e ilustrador de Rusia, es conocido en línea bajo el apodo Blik_47. Sus obras son chicas, agresivas y ...
Con cierta habilidad, poner una moneda en el borde de otra es bastante simple. Trate de añadir otro — y todo se volverá mucho ...
Este número es un post de warm lamp nostalgia, una selección de fotos de los archivos familiares de muchos actores soviéticos ...

El fotógrafo documental estadounidense Bruce Davidson llegó al Reino Unido en 1960 por un par de meses para la revista Queen. La ...